fuTUr3 - Atmosph. Möglichkeitsräume

Edward Dederer & Tiana Hilker
Edward Dederer & Tiana Hilker
Beginn 26.10.2023
Betreuung Bernhard Ax & Simon Banakar
Ort IAD

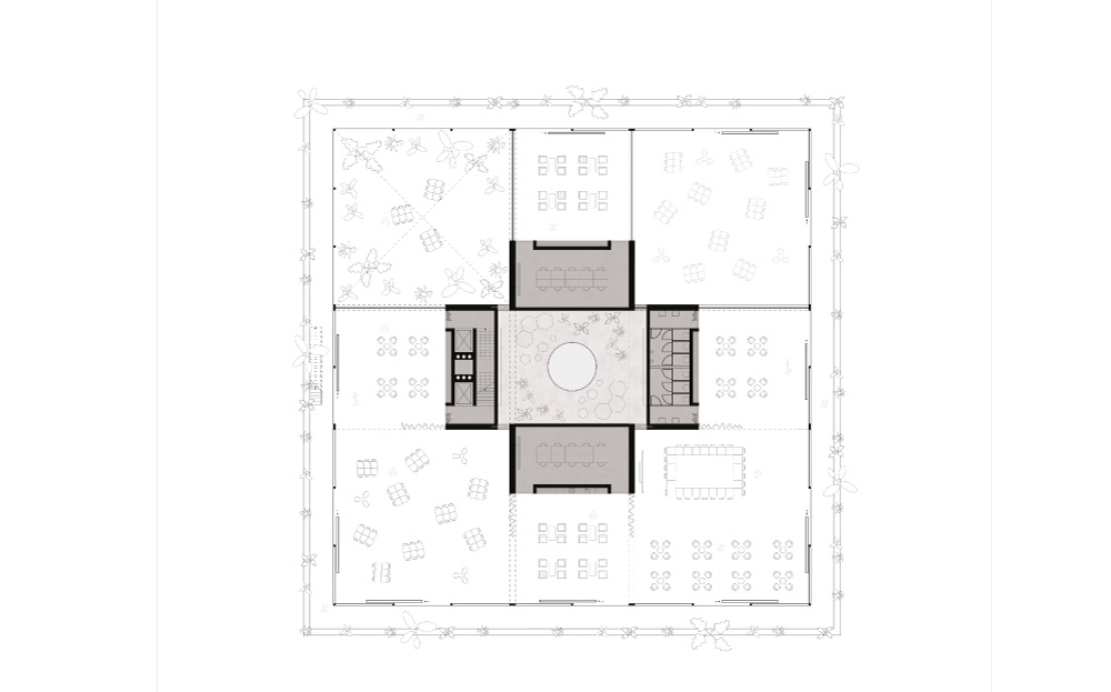
Projektbeschreibung

Tell me and I forget. Teach me and I remember. Involve me and I learn.
Benjamin Franklin

Digitalisierung, Klimakrise, Pandemie - die Welt befindet sich in rasantem Wandel. Von den tiefgreifenden Transformationsprozessen und gesellschaftlichen Herausforderungen werden auch die Hochschulen ergriffen. Wie sieht die Universität der Zukunft aus? Auf welche Weise werden kommende Entwicklungen die universitäre Idee der Gemeinschaft der Lehrenden und Lernenden verändern? Welche erlebbaren Orte und Räume als dauerhafte Identitätsträger werden ungeachtet der Dynamik zukünftiger Anforderungen Bestand haben? 

Im Kontext dieser Fragen befasst sich der ME mit dem Potenzial einer zukunftweisenden Typologie, die wir Atmosphärischer Möglichkeitsraum nennen. Grundlage dafür ist die Überzeugung, dass eine prägnante architektonische Struktur und die damit verbundene unmittelbar physische Raumerfahrung den Gegenpol zum schnellen Wandel bilden. Die Struktur muss nicht nur für den aktuellen Gebrauch sinnvoll entworfen sein. Sie bildet auch den Bestand von morgen, muss offen sein für bauliche Veränderungen und Erweiterungen wie für andere Nutzungen. Welche strukturell-räumlichen Elemente und Phänomene befähigen ein Gebäude, verschiedene Programme aufzunehmen - und dennoch seinen eigenständigen räumlichen Ausdruck und Charakter zu behaupten? Untersuchungsgegenstand und Fallbeispiel für die Universität der Zukunft ist der Hauptcampus der TU Braunschweig.

Die Projekte werden in einem großmaßstäblichen Stadtmodell kontextualisiert. Ausgewählte Arbeiten werden im Rahmen einer Werkschau des IAD im Sommersemester 2023 im Architekturpavillon ausgestellt. Der ME ist durch inhaltlichen Austausch und gemeinsame Exkursion mit dem MEX verbunden.

Übersicht ausgewählter Arbeiten