Haus der Fakultäten

Atmosphärische Darstellung Sven Kuehling
Atmosphärische Darstellung Sven Kuehling
Beginn 06.10.2016
Betreuung Prof. Volker Staab, Chris Jensen, Christian Thomann & Bernhard Ax
Ort IAD

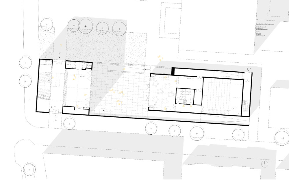
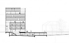
Projektbeschreibung

 

Das Forum der TU Braunschweig ist baulicher Ausdruck der Entwicklung der Universität bis in die 60er Jahre mit dem Gegenuüber zentraler Einrichtungen und der Präsidialverwaltung in besonderer Position. Die Verwaltungsstrukturen der Universität sind heute grundlegend anders. Waren die Dekanate früher Ein- bis zwei- Personen-Büros, sind sie heute zu Abteilungen mit Geschäftsführung und Personalstab gewachsen. Eine bauliche Entwicklung, die diesen veränderten Anforderungen und der gewachsenen Bedeutung der Geschäftsstellen angemessen Rechnung trägt, folgte daraus bisher nicht. Ein Ort, der der die Fakultäten angemessen repräsentiert und wahrnehmbare Anlaufstelle für Studieninteressierte und Studierende ebenso wie für Lehrende ist, fehlt. 

Das Haus der Fakultäten soll diese Adresse bieten. Hier sollen die am zentralen Campus der TU Braunschweig bestehenden Geschäftsstellen der Fakultäten Carl-Friedrich-Gauß, Lebenswissenschaften, Architektur-Bauingenieurwesen-Umweltwissenschaften und Maschinenbau sowie die Dekanate eine Repräsentanz finden. Das Programm umfasst die Büros für Mitarbeiterinnen und Mitarbeiter, die so gestaltet und organisiert sein müssen, dass sowohl Einzel- und Teamarbeit möglich sind als auch Besucher empfangen werden können. Darüber hinaus bilden ein zentraler Empfang, Wartebereiche und temporäre Arbeitsplätze für Studierende, ein multifunktionaler Veranstaltungssaal, Ausstellungszonen, ein Café-Bistro und Gästewohnungen weitere Bereiche. Für den Entwurf zur Wahl stehen drei Grundstücke an der Pockelsstraße, der Achse des Zentralcampus der TU. Hier kann das Haus der Fakultäten als präsenter und repräsentativer Ort entstehen.

Ausgabe der Bachelorarbeit und Einführung in die Aufgabe am 06.10.2016 um 12:30 Uhr am IAD.

Abgabetermin: 19.01.2017

Übersicht ausgewählter Arbeiten