Eldorado

Überflugperspektive von Dinah Fray
Überflugperspektive von Dinah Fray
Beginn 17.10.2016
Betreuung Prof. Volker Staab
Ort IAD

Projektbeschreibung

 

Der Vergnügungspark war schon immer ein Ort von Utopien und Visionen, von künstlicher Megalomanie im Zusammenspiel aller Kunstformen, von Bildender Kunst, Film, Musik, Literatur, Design und Architektur. Als Attraktionen gefeiert waren diese Orte nicht zuletzt auch Inspiration für die Stadtplanung, wie Rem Koolhaas in „Delirious New York“ über das Coney Island des frühen 20 Jahrhunderts schreibt.

Lässt sich diese unwirkliche, dem Vergnügen verschriebene Form von Urbanismus auf neue Weise interpretieren und kann sie sogar Teil der Stadt werden? Welche Form nimmt ein ehemaliger Vergnügungspark in der Kulturhauptstadt Berlin an, wenn, wie von Kultursentor Geissel vorgeschlagen, an die Stelle von Fahrgeräten Künstlerateliers und Ausstellungsflächen treten? Wie kann dem im kollektiven Gedächtnis gebliebenen Spreepark auf angemessene Weise Rechnung getragen werden? Kann ein solches Areal für Kultur eine ähnliche Anziehungskraft entwickeln wie einst der Spreepark selbst? Welche raumplanerischen Besonderheiten lassen sich aus der Idee eines Kulturparks ableiten? Kann durch die Umnutzung das Areal als Sehnsuchtsort bestehen bleiben und den Besucher immer noch in eine ihm fremde, fantastische Welt entführen?

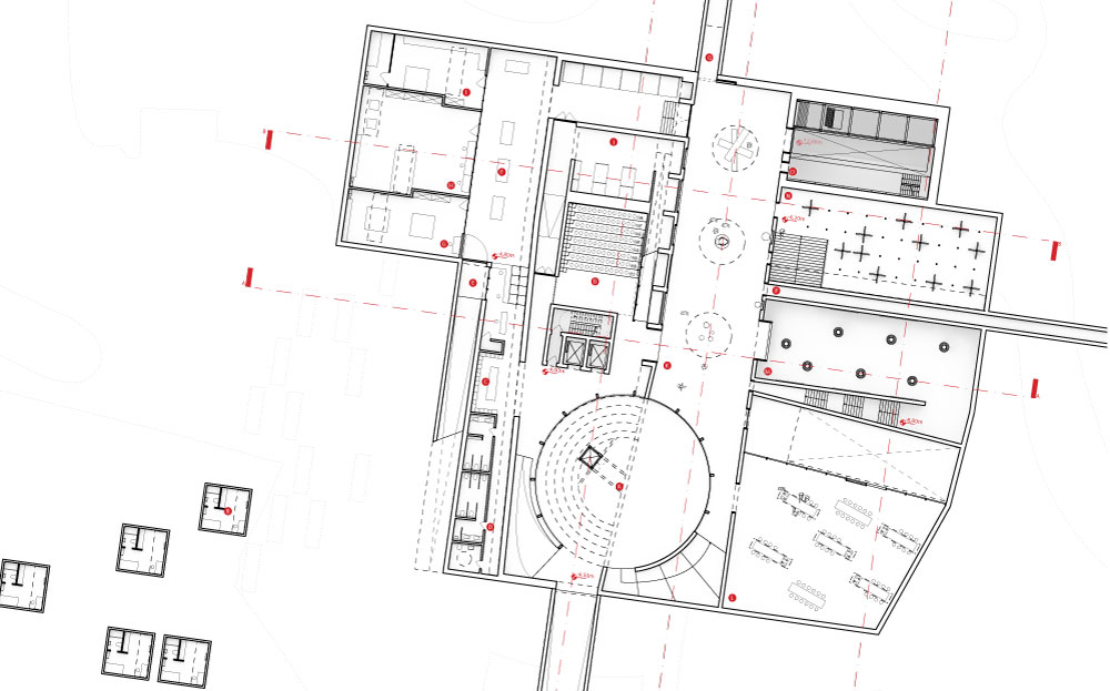
Aufgbe der Master-Thesis ist es, auf Grundlage der aktuellen Planung ein zentrales Gebäude auf dem Gelände des ehemaligen Spreeparks zu entwickeln. Das Erarbeiten einer architektonischen These zum Ort inklusive der Definition eines eigenen Raumprogramms gehören zum fundamentalen und anspruchsvollen Bestandteil dieser Aufgabe. Die kritische Auseinandersetzung mit aktuellen Trends im Bereich Kunst und Kultur und ein ausgedehnter theoretischen Diskurs sind neben dem Entwurf die gesetzten Schwerpunkte.

Exkursion nach Berlin voraussichtlich: 9 -10.11.2016

 

Abgabetermin: 02.03.2017

Übersicht ausgewählter Arbeiten