Egon Eiermann Preis

Jannis Petereit & Rebekka Kühn
Jannis Petereit & Rebekka Kühn
Betreuung Prof. Volker Staab & Christian Thomann
Ort IAD

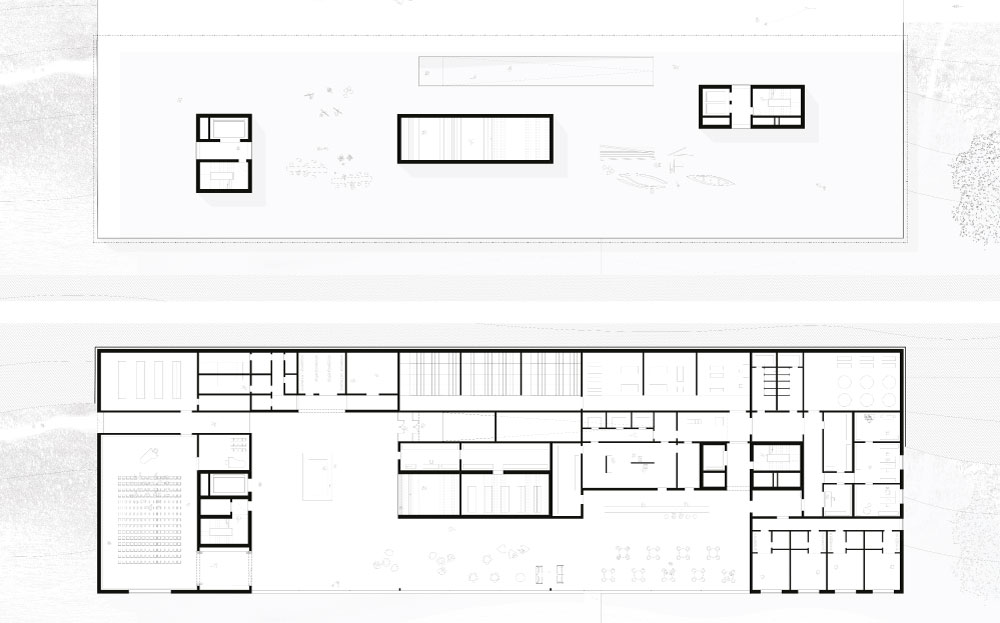
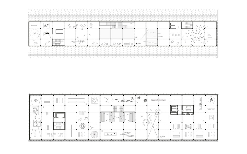
Projektbeschreibung

Erfolg beim Egon Eiermann Preis

 

Wettbewerbsthema

Der ländliche Raum schrumpft. Eine kürzlich veröffentlichte Studie prognostiziert, dass der Druck auf die Großstädte Deutschlands bis zum Jahr 2045 erheblich zunehmen wird, während Gebiete, die unter Abwande- rung leiden, weiter an Bedeutung verlieren werden. Vor allem der Osten Deutschlands leidet bereits seit den 1990er Jahren unter einer immer stärker werdender Abwanderung vor allem junger Menschen. Was sind die Folgen eines daraus entstehenden großen Unterschiedes zwischen Stadt und Land?

Wer einen Blick in die Zukunft wagen will, macht sich am besten auf den Weg in die Westalpen. Ganze Täler sind seit der Industrialisierung am Ende des 19. Jahrhunderts von einer starken Abwanderung betroffen, die sich bis heute hinzieht. In einem langsamen, aber stetigen Prozess verwandeln sich Nutz ächen zurück in Wald ächen, verbaute Bachläufe brechen aus ihren Grenzen aus und treiben die Erosion voran, Straßen und Infrastruktur werden sukzessive von der Natur überwuchert. Gleichzeitig erhöhen sich die Gefahren durch Lawinen, Erdrutsche und Überschwemmungen, die wiederum Auswirkungen auf die nahen Siedlungsgebie- te der Menschen haben können. Nicht zuletzt geraten ganze Kulturen, Traditionen und Lebensweisen einer Gesellschaft, die uns alle geprägt haben, in Vergessenheit.

Es muss also ein Anliegen sein, den ländlichen Raum für die Gesellschaft zu erhalten, zu festigen und weiter zu entwickeln. Architektur kann ein Impulsgeber für neue Entwicklungen sein, das wissen wir spä- testens seit dem Bau der weltberühmten Therme von Peter Zumthor in Vals in der Schweiz. Viele andere gebaute Beispiele haben vorbildlich bewiesen, dass regionales, hochwertiges Bauen im ländlichen Raum dazu führen kann, die Bevölkerung an ihren Ort zu binden und ihre Identi kation mit dem Ort erhalten kann.

Wettbewerbsaufgabe

Suchen Sie einen Ort im ländlichen Raum, der von Abwanderung bedroht ist. Stellen Sie sich die Frage, was für diesen Ort typisch ist, welche Potentiale er hat und was dem Ort fehlt. Suchen Sie einen Bauplatz, ein verlassenes Haus, eine Baulücke oder ähnliches und erarbeiten Sie ein visionäres Konzept für ein öffentlich nutzbares Gebäude, das dem Ort eine neue, identitätsstiftende Rolle zuteilwerden lassen kann und einen Mehrwert für die Bewohner darstellt.

Stellen Sie ein Raumprogramm auf; Größe, Nutzung und räumliches Konzept sollen dabei im Einklang mit dem Ort und den dort vorherrschenden Gegebenheiten und Voraussetzungen stehen. Eine sorgfältige Aus- wahl der verwendeten Materialien und Konstruktionstechniken mit einer nachvollziehbaren Begründung sollen den Entwurf abrunden und in seiner Gesamtheit überzeugen. 

Anerkennung: Jannis Petereit, Rebekka Kühn

Betreuung: Christian Thomann

Übersicht ausgewählter Arbeiten