In Klausur

Atmosphärische Darstellung von Lukas Meyer
Atmosphärische Darstellung von Lukas Meyer
Beginn 04.04.2018
Betreuung Prof. Volker Staab, Daniela Bergmann, Chris Jensen, Jonas Kneisel & Steffen Rebehn
Ort IAD

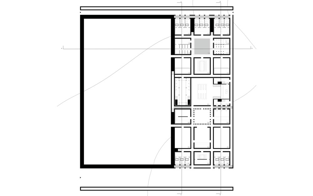
Projektbeschreibung

 

Es werden Grundkenntnisse der Gebäudeplanung und ihre Anwendung im Entwurf vermittelt. Hierbei werden Potenziale der Konzeptfindung, Strategien und Methoden des architektonischen Entwerfens, Entstehung und Entwicklung gebäudetypologischer Elemente, sowie Wirkung räumlicher Phänomene untersucht.

In auf einander aufbauende Entwurfsphasen sollen unter den Aspekten Ort+Programm / Idee+Konzept / Entwurf+Konstruktion / Materialität+Atmosphäre eigenständige gebäudeplanerische Projekte entwickelt werden.


Ausgabe: 04.04.2018/12:00 Uhr
Abgabe: 04.07.2018/09:30 Uhr

Exkursion - Ort: 06.04.2018
Exkursion - Input: 20./21.04.2018

Korrektur: mittwochs

Übersicht ausgewählter Arbeiten