Demos und Desmos

Internationaler Städtebaulicher Ideenwettbewerb Spreebogen 1. Preis- Konzeptskizze Axel Schultes, Schultes Frank Architekten
Internationaler Städtebaulicher Ideenwettbewerb Spreebogen 1. Preis- Konzeptskizze Axel Schultes, Schultes Frank Architekten
Beginn 03.04.2014
Betreuung Prof. Volker Staab, Prof. Almut Grüntuch-Ernst & Bernhard Ax
Ort IAD

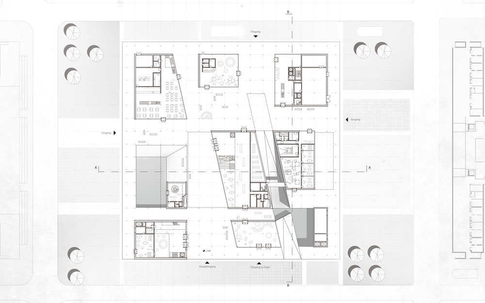
Projektbeschreibung

„Das Spreebogenareal war von Anbeginn [...] gemeint als der [...] »große, generöse Satz, den diese Gesellschaft über sich selbst zu sprechen fähig ist, über sich selbst als eine Hoffnung und als eine Wette«; eine Wette, die wir damals so gern eingegangen sind: Da wäre die öffentliche Lust im Bürgerforum, wo der Souverän, das Volk sich seiner selbst vergewissern, sich von der »Krankheit des Deutschseins« – der Angst – erholen könnte;“

Mit diesen schweren Worten beschreibt Axel Schultes seine Idee für das „Band des Bundes“. Sein Credo: Wagnis statt Biedersinn, Großartigkeit statt Bescheidenheit und der Versuch, „mit Mitteln der Architektur der grassierenden zynischen Vernunft unseres Gemeinwesens einen republikeigenen Enthusiasmus entgegenzustellen“. Er nennt zuallererst das Bürgerforum als Ausdruck einer selbstbewussten Demokratie, das Kanzleramt und Abgeordnetenhaus baulich zu Leibe rücken möge.

Auch Norman Foster hatte bei der Umnutzung des Reichstags die Bürger im Sinn: Unter dem Schriftzug „Dem Deutschen Volke“ sollten, und konnten sie zunächst auch, „ihr Haus“ durch das Hauptportal betreten. Der 11. September 2001 raffte die Foster‘schen und Schultes‘schen Ideale dahin. Seitdem dominiert nicht nur politische Sicherheitsarchitektur: Barracken und Vergitterungen säumen den Weg der Bundestagsbesucher. Statt eines Bürgerforums bietet sich das „Bild von einem Niemandsland der Republik“.

Das Provisorium der Kontrollbauten soll nun dauerhaft in einem sog. Besucher- und Informationszentrum des Deutschen Bundestages aufgehen. Mit dieser Nutzung ließen sich die Schultes‘sche Idee und das „Niemandsland“ beleben.

Übersicht ausgewählter Arbeiten