Freie Bachelorarbeit

Leon Vöckler
Leon Vöckler
Beginn 08.04.2019
Betreuung Prof. Volker Staab, Jonas Kneisel & Steffen Rebehn
Ort IAD

Projektbeschreibung

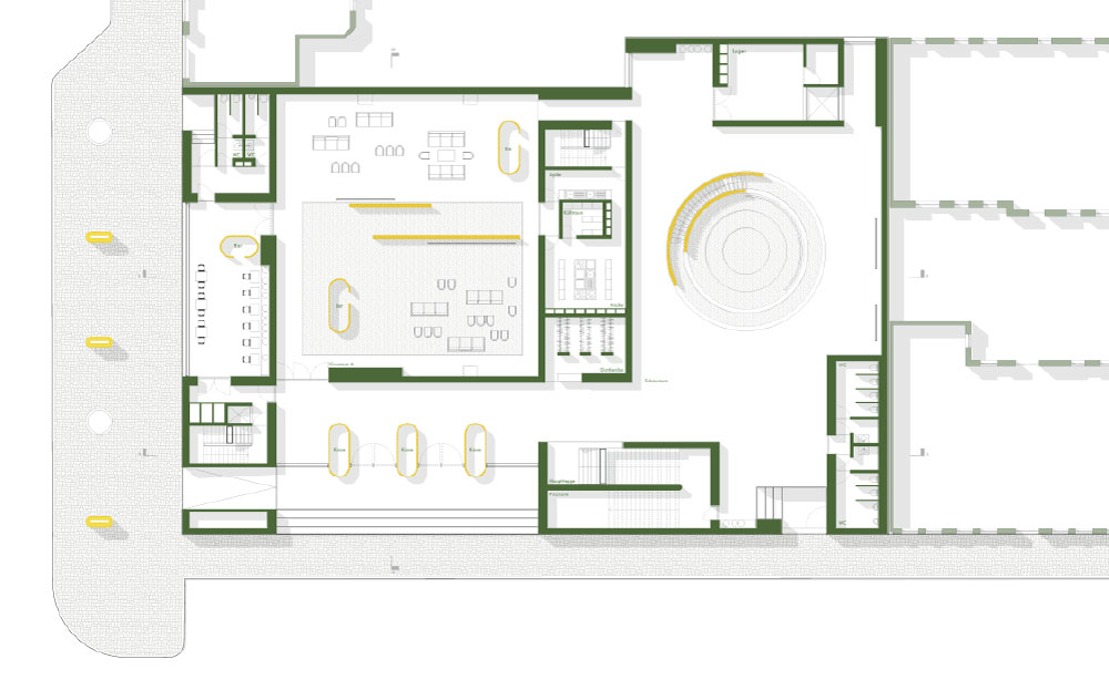
Im Sommersemester 2019 entschieden sich drei Studierende dafür, als Bachelorarbeit ein freies, selbst gewähltes Thema im IAD zu bearbeiten.

Nikolaus Theissen - " Hertha Stadion - Entwurf eines Stadions für Hertha BSC "

Lukas Eilers - " Lichtspiele | Schauraum | Bar - Kino im Schillerkiez, Berlin "

Leon Vöckler - " Attraktion Mond - Interaktives Museum zur Anziehungskraft des Mondes "

Übersicht ausgewählter Arbeiten