Erfolg beim Helmut-Rhode-Förderpreis 2019

Zwei Studierende der TU Braunschweig konnten mit ihren am IAD erarbeiteten Projekten in Form von handgefertigten Zeichnungen und Aquarellen beim diesjährigen Helmut-Rhode-Förderpreis große Erfolge erzielen. Kathrin Krones mit ihrer Arbeit in Rahmen des Experimentellen Masterentwurfes, sowie Janin Töpperwein mit einem selbst gewählten Thema als Kompaktentwurf konnten sich in zwei unterschiedlichen Kategorien jeweils den 1. Preis sichern.

 "Bei ihrer Sitzung am 14. Oktober stand die diesjährige Jury zum Helmut-Rhode-Förderpreis vor einer Herausforderung. Die Juroren, darunter die Düsseldorfer Stadtplanungsdezernentin Cornelia Zuschke, der SZ-Redakteur Gerhard Matzig und Professor Uli Hahn vom Fachbereich Entwerfen an der FH Aachen, mussten lange tagen, um aus den zahlreichen Einsendungen die Gewinner zu küren. Um dem hohen Niveau bei gleichzeitig großer Vielfalt gerecht zu werden, entschied sich das Preisgericht, drei Kategorien zu definieren. In diesen wurde jeweils ein 1. Preis und ein Sonderpreis vergeben.

Am 24.10.2019 fand die feierliche Preisverleihung im Stadtmuseum Düsseldorf statt, wo alle eingereichten Arbeiten ausgestellt wurden. Den 1. Preis in der Kategorie „Erzählendes und analysierendes Zeichnen“ erhielt Katrin Krones, Studentin der TU Braunschweig für ihre „bildlich bezaubernden Skizzen als genuines Medium der poetischen Erzählung“, so Prof. Hahn. In der Kategorie „Skizzenbücher“ überzeugte Moritz Waldhelm von der RWTH Aachen die Jury mit seiner „spürbaren Zeichenfreude, … die auch dem Betrachter viel Raum gibt, sich in den imaginären Welten treiben zu lassen.“ Und als drittes vergaben die Juroren einen weiteren Preis in der Kategorie „Darstellungstechnik / Präsentation“, der ebenfalls an eine Studentin der TU Braunschweig ging. Janin Töpperwein zeigte mit „gekonntem Einsatz das genuine Potenzial des Aquarells“, so Prof. Hahn."

Zu den beiden Arbeiten schreibt die Rhode Kellermann Wawrowsky GmbH auf ihrer Seite: 

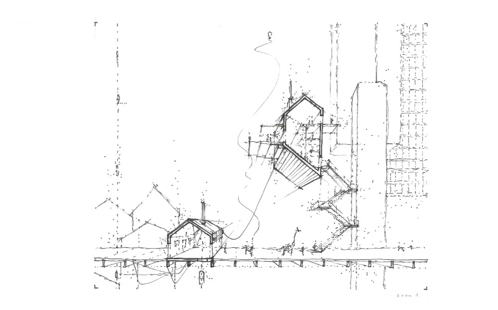
"Kategorie
Erzählendes und analysierendes Zeichnen
1. Preis

Die Arbeiten der Preisträgerin Kathrin Krones von der TU Braunschweig.

Die Zeichnungen von Katrin Krones zu einer imaginären vertikalen Stadt formulieren in Form einer sehr anschaulichen, grafischen Erzählung eine eigene Welt, eine Utopie. Die Assemblage von verschiedenen gestapelten Architekturversatzstücken führt den Betrachter in einen komplexen Mikrokosmos von Orten. Gerade durch die Darstellung in Form einer filigranen Federskizze sagt dieser genug, um die Referenz erahnen zu lassen, lässt ihm aber Raum, um darüber hinaus frei eigenen Imaginationen und Fantasien zu folgen. Man meint, in den Prozess der Entstehung der Zeichnungen hineingezogen zu werden. Es erschließt sich dem Betrachter in bildlich bezaubernder Weise die Skizze als ein genuines Medium der poetischen Erzählung."

 

"Kategorie
Darstellungstechnik, Präsentation
1. Preis

Die Arbeiten der Preisträgerin Janin Töpperwein von der TU Braunschweig.

Die Darstellungen zum Projekt Site Mausoleum von Janin Töpperwein setzen sich zeichnerisch und malerisch ausschließlich mit dem Thema Raum auseinander. Das Bild eines substraktiv in ein Felsmassiv gehauenen Raumes entsteht über das Wechselspiel von Fläche und Licht, dem Grundphänomen, das den architektonischen Raum prägt. Der harte grafische Gegensatz zwischen dem Schwarz der Masse und dem sensibel dargestellten Verlauf des kontrolliert einfallenden, zenitalen Lichtes vermittelt dem Betrachter die Erfahrung eines komplexen, eindrucksvollen Raums und seiner stark durch sein Material geprägten Anmutung. Die Bilder zum Site Mausoleum zeigen ein genuines Potenzial des Aquarells, dessen gekonnter Einsatz die erzählerische Dimension des beeindruckenden Projekts angemessen veranschaulicht."



https://rkw.plus/de/nachwuchsfoerderung-beitrag/helmut-rhode-foerderpreis-2019/# , 15.11.2019, 10:37

Kathrin Krones