Freie Kompaktentwürfe

Therese Fuchs & Emma Pauline Thies
Therese Fuchs & Emma Pauline Thies
Beginn 11.03.2021
Betreuung Prof. Volker Staab
Ort IAD

Projektbeschreibung

Auch im Sommersemester 2021 bot das Institut Studierenden wieder die Möglichkeit frei gewählte Themen am IAD zu bearbeiten.
Einige Studierende aus dem Bachelorstudiengang entschieden sich dafür ihre Kompaktentwürfe als freie Projekte zu bearbeiten.

 

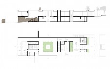
Emma Pauline Thies & Therese Fuchs - "Plant Lab - Ein Pflanzenforschungszentrum auf Island"

Carl Hübenthal - "Das Entree von Pompeji"

Übersicht ausgewählter Arbeiten